Řízení větrání s rekuperacemi Zehnder
Proč mít v domě komfortní systém větrání?
Systém řízeného větrání s rekuperací tepla se stává nezbytnou součástí nejen nízkoenergetických a pasivních staveb. Díky vzduchotěsné obálce a důrazu na energetickou účinnost budov je tento systém vhodným řešením jak z hlediska dosažení komfortního vnitřního klima, tak vzhledem k úsporám energií.
Princip fungování rekuperační jednotky

Zdroj: Zehnder group
Jak systém funguje?
- Přívod čerstvého vzduchu: Čerstvý a filtrovaný venkovní vzduch je do systému přiváděn otvorem v obvodové stěně. Volitelně může být venkovní vzduch veden do zemního výměníku tepla, který využívá teplo země k jeho předehřívání.
- Větrací jednotka: Díky patentované technologii výměníku se až 95 % tepla získává z odváděného vzduchu a předává vzduchu čerstvému. Pomocí volitelného příslušenství lze zároveň vzduch optimálně zvlhčovat či odvlhčovat, ohřívat nebo ochlazovat.
Systém rozvodu vzduchu: Za pomoci optimálně navrženého systému rozvodu vzduchu je čerstvý, čistý vzduch přiváděn do jednotlivých místností a odváděný vzduch je veden ven z interiéru. Množství vzduchu lze regulovat a nastavovat individuálně pro každou místnost.
Funkce a výhody rekuperace
Rekuperace tepla
Větrací jednotky Zehnder, standardně vybavené patentovanými, křížově protiproudými výměníky tepla, dokáží předávat čerstvému vzduchu tepelnou energii z odváděného spotřebovaného vzduchu. Tento přenos tepla probíhá přes tenké plastové desky na principu protiproudu.
Účinnost rekuperace tepla je až 95 %, což znamená úsporu energie až 50 %.
Rekuperace vlhkosti
Pomocí entalpického výměníku se rekuperuje až 65 % vlhkosti obsažené v odváděném vzduchu.
Tím se optimalizuje relativní vlhkost vzduchu v budově, což je ideální ochrana proti příliš suchému vzduchu v zimě. Vodní pára při tom může difundovat membránou. Získaná vlhkost a teplo jsou předávány čerstvému přiváděnému vzduchu, a to bez přenosu pachů či mikrobů.
Entalpický výměník Zehnder se dá snadno propláchnout vodou s přídavkem šetrného čisticího prostředku.
Automatický letní bypass
Smysl automatického bypassu je vést odváděný vzduch kolem výměníku tepla. Tím se zabrání tomu, aby se přiváděný vzduch, který je v létě předběžně ochlazován zemním výměníkem tepla, ohříval teplým odváděným vzduchem.
Tato funkce najde využití i za chladnějších letních nocí.
Klima a hygiena
Kvalitní rekuperace pečuje o zdraví a šetří náklady. Rekuperace Zehnder nabízí celoroční ventilaci celého domu. Odstraňuje vydýchaný vzduch, kondenzaci a znečišťující látky a zároveň vrací zpět teplo. Výrazně zlepšuje kvalitu vnitřního vzduchu a snižuje spotřebu energie.
Můžete získat zpět až 95% tepla, které byste jinak ztratili klasickým větráním okny. Ušetříte až polovinu za vytápění a vaše plíce budou dýchat čistý a nezávadný vzduch.
Nejoblíbenější rekuperační jednotky Zehnder
Rekuperační jednotka Zehnder ComfoAir 200

Větrací jednotka Zehnder ComfoAir (CA) 200 je určena k použití v obytných a komerčních objektech. Spojuje vysoký komfort, jednoduchou obsluhu, vysokou účinnost a flexibilní integraci do budovy. Větrací jednotka CA 200 je vybavena výkonnými ventilátory s maximálním průtokem vzduchu 160 m³/h při tlakové rezervě 200 Pa.
Technické parametry
- Komfortní větrání do 200 m³/h
- Zpětné získávání tepla s účinností až 95 %
- Nižší spotřeba elektrické energie díky EC ventilátorům
- Automatický 100% letní obtok (bypass)
- Funkce protimrazové ochrany
- Ovládání pomocí bezdrátového ovladače RF
- Nastavitelný týdenní program
- Jednoduchá uživatelská údržba
Volitelné příslušenství
- Integrovaný předehřev
- Čidlo CO2
- Čidlo vlhkosti
Rekuperační jednotka Zehnder Q350 TR

Nejmodernější design v kombinaci s inteligentní technologií činí z jednotky Zehnder ComfoAir Q to nejlepší na trhu. Díky mnoha inovacím lze dosáhnout maximálního snížení hlučnosti, ještě účinnější rekuperace tepla a mimořádně nízké spotřeby energie. Jednotka Zehnder ComfoAir Q přináší nejvyšší komfort pro optimální vnitřní klima při maximální energetické účinnosti.
Technické parametry
- Komfortní větrání do 350 m3/h při 200 Pa
- Zpětné získávání tepla s účinností až 95 %
- Nejnovější ventilátorová technologie pro tichý a energeticky úsporný provoz
- Inovativní bilance množství vzduchu pro maximální účinnost rekuperace tepla
- Nový výměník tepla ve tvaru diamantu s větším povrchem pro účinnější rekuperaci tepla a sníženým odporem vzduchu pro nižší spotřebu energie
- Jednoduchá uživatelská údržba
Volitelné příslušenství
- Integrovaný předehřev
- Čidlo CO2
- Čidlo vlhkosti
Rekuperační jednotka Zehnder ComfoD 350

Komfortní větrací jednotka Zehnder ComfoD 350 s účinností rekuperace až 95 % a maximálním průtoku vzduchu 370 m2/h. Automatická protizámrazová ochrana, včetně letního by-passu. Jednotka ComfoD 350 disponuje tichým chodem s vysoce výkonnými EC ventilátory. Jednoduché ovládání pomocí 3-stupňového ovladače.
Technické parametry
- Komfortní větrání do 370 m³/h
- Zpětné získávání tepla s účinností až 95 %
- Nižší spotřeba elektrické energie díky EC ventilátorům
- Automatický 100% letní obtok (bypass)
- Funkce protimrazové ochrany
- Jednoduché ovládání pomocí 3-stupňového ovladače
- Nastavitelný týdenní program
- Jednoduchá uživatelská údržba
Volitelné příslušenství
- Integrovaný předehřev
- Čidlo CO2
- Čidlo vlhkosti
Orientační ceny za rekuperace Zehnder
Cena obsahuje materiál i práci. Ceny jsou orientační.
Prostorný bungalov 160 m2

bungalov, 160 m2, novostavba
Větrací jednotka:Zehnder ComfoD 350
Umístění jednotky:technická místnost
Instalace rozvodů:ve stropním podhledu
Cena za materiál: 155 079 Kč
Cena odborné instalace: 45.000 Kč
V ceně je obsaženo oživení a zaškolení obsluhy.
Cena je včetně DPH 12%
Popis řešení
Objekt s více podlažími a větším počtem místností. Vyšší nároky uživatelů domu splňuje větrací jednotka nové generace Zehnder ComfoAir Q350, umístěná do technické místnosti.
Akustická tlumič s montážní deskou s různým počtem připojovacích portů je upevněn pod stropem. Umožňuje připojení až 12 kulatých větracích trubek s průměrem 90 mm, které vedeme v jedné rovině stropním podhledem. Jejich nízká tlaková ztráta umožní rozvod vzduchu do 1. patra.
Vývody vzduchu v místnostech jsou zakončeny ventily, alternativně designovými mřížkami. Nastěněný systém větrání splňuje vysoké nároky norem a patří k nejoblíbenějším řešením pro tento typ staveb.

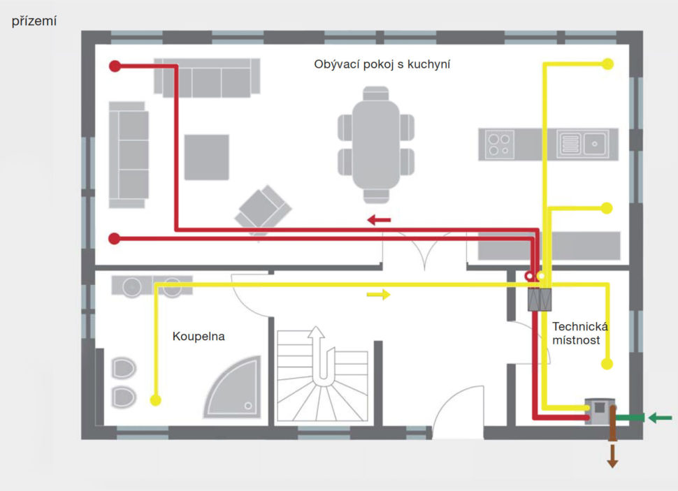
Dvoupodlažní rodinný dům 200 m2

Typ objektu: dvoupodlažní rodinný dům, 200 m2, novostavba
Větrací jednotka: Zehnder ComfoAir Q350
Umístění jednotky: technická místnost
Instalace rozvodů: ve stropním podhledu, stoupačky ve stěně
Cena za materiál: 127 490 Kč
Cena odborné instalace: 37.000 Kč
V ceně je obsaženo oživení a zaškolení obsluhy.
Cena je včetně DPH 12%
Popis řešení
Větrací jednotka je umístěna v malé technické místnosti hned vedle kuchyně. Její tichý chod a za jednotkou umístěný prostorově úsporné akustické tlumiče s rozdělovačem vylučují obtěžování uživatelů domu hlučností. Pro dodávku optimálního množství vzduchu do každé místnosti byly použity kulaté větrací trubky o průměru 90 mm, vyznačující se nízkou tlakovou ztrátou.
Jsou vedené ve stropním podhledu (rovněž je lze vést po stropě na půdě, ale musí být perfektně zaizolované). "Hvězdicovitý" systém rozvodů vzduchu se samostatným potrubím do každé místnosti umožňuje přesné vyregulování množství vzduchu a zamezuje přeslechům mezi místnostmi.
Tiché proudění vzduchu do místností bez průvanu zajišťují nové, tvarově decentní ventily Luna.



Optimalizace vlhkosti entalpickými výměníky
Větrací jednotky Zehnder jsou k dodání s unikátním entalpickým výměníkem, který díky speciálním membránám dokáže z odváděného vzduchu předávat do přiváděného vzduchu nejen teplo, ale až 73% vlhkosti. Tím výrazně snižuje riziko vysoušení vzduchu a sesychání dřevěných výrobků v zimním období. Odstraňuje starost o zamrzání výměníku. Umožňuje čištění propláchnutím vodou pro dlouhodobě vysokou účinnost rekuperace.
Patentovaná vrstva Microban® zajišťuje vyokou účinnost rekuperace a přenos čerstvého vzduchu bez pachů, nečistot, mikrobů a plísní.Unikátní výměník tepla u jednotek ComfoAir Q ve tvaru diamantu má mimořádně velkou předávací plochu a dosahuje tak vyšší účinnosti rekuperace tepla, vlhkosti i chladu. Variabilní výšky kanálků zajišťují rovnoměrné proudění, nižší tlakové ztráty a díky tomu menší spotřebu energie a hlučnost.

Originální filtry Zehnder pro zdraví
Originální filtry Zehnder splňují nejpřísnější kritéria nové normy "ISO ePM1". Zabraňují vdechování těch nejmenších částic a tím významně přispívají k lidskému zdraví. Jsou výjimečně těsné, mají etxra velkou plochu a výjimečnou stabilitu. Zabezpečují vysokou účinnost větracího systému a perfektní vnitřní klima
Čtyři dobré důvody pro volbu originálních filtrů Zehnder:
- Efektivnější provoz ► nižší provozní náklady
- Menší hlučnost ► vyšší komfort bydlení
- Čerstvý čistý vzduch ► lepší zdraví
- Delší životnost ► méně častá výměna filtrů / nižší náklady


Hygienické rozvody = maximální čistota vzduchu
Jedině volbou kvalitních větracích jednotek i rozvodů vzduchu získá zákazník ve svém rodinném domě to, co od systému větrání s rekuperací tepla očekává = neustále čerstvý čistý vzduch. Na rozdíl od větrací jednotky se rozvody zabudovávají do stavby a po jejich instalaci již k nim není přístup nebo jen velmi omezený. Proto je nutné rozvodům vzduchu věnovat velkou pozornost!
Zehnder je prvním výrobcem, který začal vyrábět větrací trubky s hladkým vnitřním povrchem Clinside. Patentovaný antibakteriální a antistatický povrch Clinside výrazně snižuje usazování prachu, zajišťuje čistý a hygienický provoz. S "hvězdicovitě" navrženými rozvody vzduchu umožňuje i po mnoha letech provozu snadné a důkladné čištění. Je certifikovaný uznávaným německým hygienickým institutem.
